Appartement
Op aanvraag (In optie)

Tervuursesteenweg 184 B107, 3060 Bertem
    • delen

Omschrijving Ref.: 7226294

Mooi energiezuinig appartement in het hartje van Bertem


Dit prachtig eenkamerappartement bevindt zich op de eerste verdieping van residentie ‘Den Teusser’ in het hartje van Bertem. Het appartement is energiezuinig met een EPC van 134 kWh/m². Zeer gunstige ligging in het centrum van Bertem nabij winkels, scholen, openbaar vervoer en opritten E40/E314.

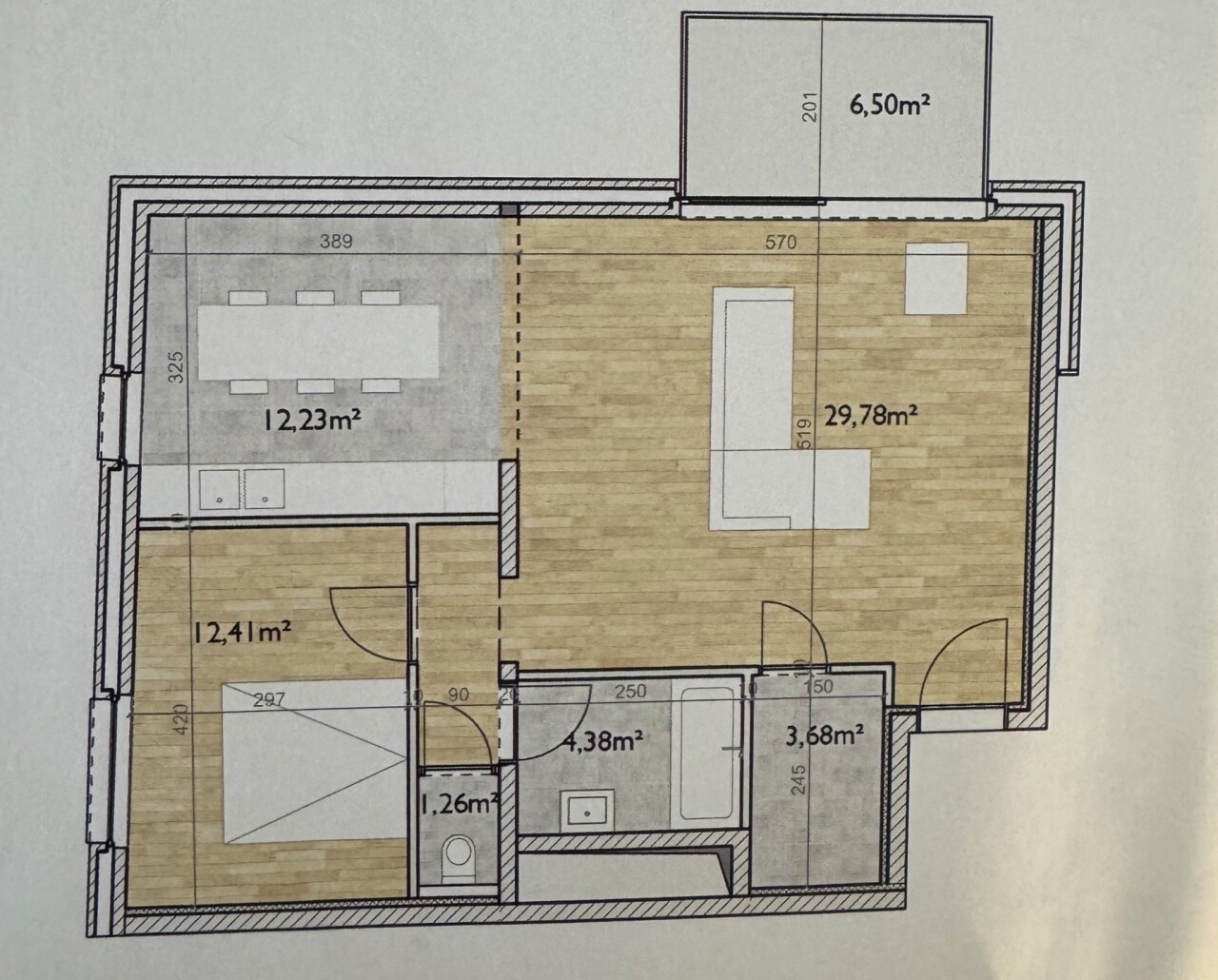
Indeling: inkomhal, ingebouwde vestiairekast, ruime en lichtrijke woonkamer met open volledig geïnstalleerde keuken en een aparte berging/wasplaats, slaapkamer, badkamer met inloopdouche en lavabo en een apart toilet. Mooi en ruim terras te betreden via een schuifraam in de woonkamer. Tevens kelderberging en een autostaanplaats inbegrepen. De huurprijs bedraagt 1050€/maand + 100€ voor de maandelijkse lasten. Verbruik individueel en er is een lift aanwezig!
Beschikbaar vanaf 15/11/2025

Voor meer info of een bezoek, contacteer Marie 0497/99 59 48 of marie@vastgoedmarie.be


Uw contact

Marie Vansteenbeeck 0497 99 59 48
contact

Details van het pand

Financieel

Prijs
Info op kantoor
Beschikbaarheid
Af te spreken met eigenaar
Beschikbaarheid datum
15 November 2025

Ligging

Buurt
Centraal, woonkern

Gebouw

Bewoonbare oppervlakte
70,00 m²
Aantal gevels
2
Bouwjaar
2013
Staat
Uitstekend
Verdiep
1

Terrein

Tuin
Nee

Parkeermogelijkheden

Garage
Ja
Parkings buiten
0
Parkings binnen
1

Indeling

Keuken
Ja
Terras
6,50 m²
Wasplaats
Ja

Comfort

Gemeubeld
Nee
Handicapvriendelijk
Nee
Videofoon
Ja
Lift
Ja

Energie

EPC
134 kWh/m²/jaar
EPC unieke code
20251026-0003718907-RES-1
Dubbele beglazing
Ja
Type verwarming
Gas cv
Verwarming
Individueel

Stedenbouw

G-score
D
P-score
D

Meer info over deze eigendom

Bedankt voor je bericht, we contacteren je zo spoedig mogelijk.
Er was een probleem bij het versturen van het formulier, gelieve opnieuw te proberen.
U moet de algemene voorwaarden aanvaarden om dit bericht te kunnen verzenden
(*) Gelieve de verplichte velden in te vullen.

Downloads